1-9305 Lupine Rd, Yukon, OK-7

9305 Lupine Rd

Bedrooms
Bath
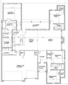
2259 Sq Ft

Welcome to Highland Ranch! This new development is located off of Britton Rd just west of Sara Rd.

This home features 3 beds, 3 baths and a 3 car garage. Pond Lot. Custom cabinetry, free standing tub, painted brick and much more! This home is move in ready!

Compare Listings

Title Price Status Type Area Purpose Bedrooms Bathrooms